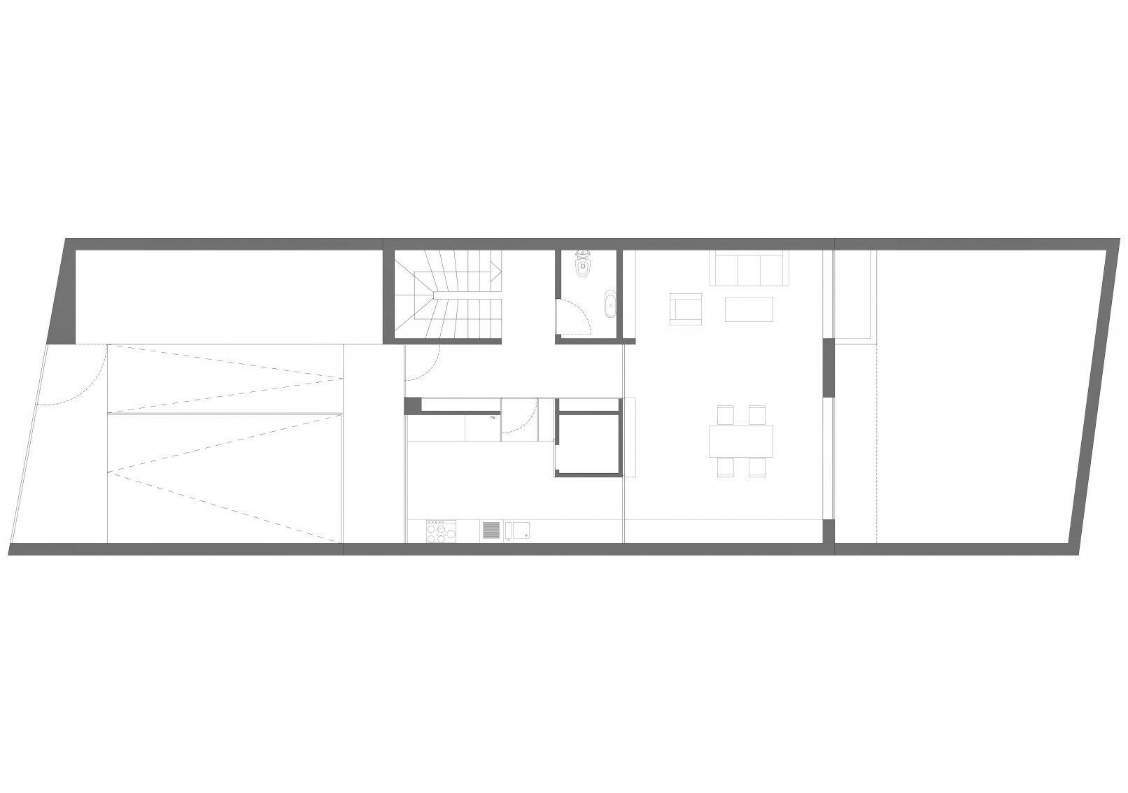
Casa em Alfageme
A casa está localizada numa zona calma, com edifícios de diferentes formas e linguagens. Optou-se por uma forma disruptiva, muito virada sobre si mesmo, que enjeite a envolvente e assinale a casa como objeto arquitetónico.
LOCAL:
Freguesia de Nevogilde, concelho do Porto, na rua Alfageme Santarém
ANO:
2014
PROGRAMA:
Habitação Unifamiliar
AUTOR:
arqtº Avelino Oliveira
EQUIPA:
Gil Brito, Elina Briede, Catarina Ferreira
especialidades: engº Lopes de Oliveira e engº Pedro Ferreira









