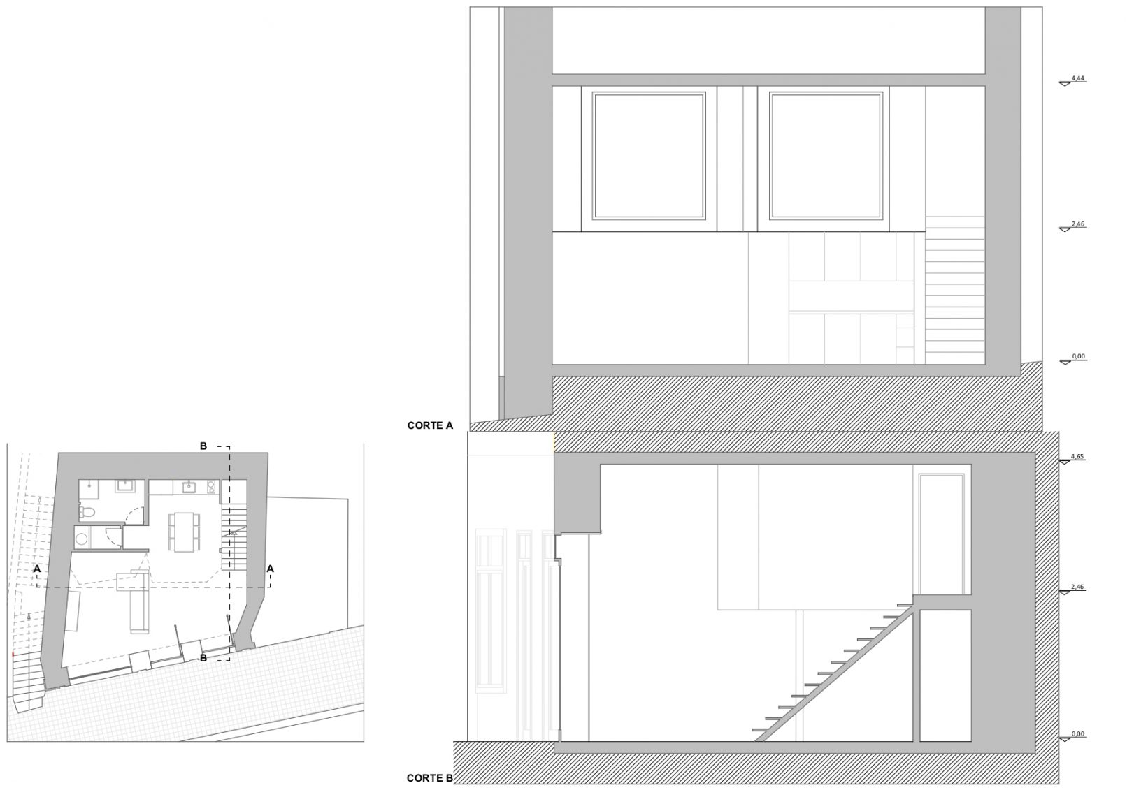
A proposta apresentada pretende enquadrar a habitação num espaço existente. A intervenção limita-se a alterações interiores, mantendo a fachada existente sem alterações, incluindo as caixilharias existentes.
LOCAL:
Cais da Fontinha, Vila Nova de Gaia
ANO:
2020
PROGRAMA:
Alojamento Local
AUTOR:
arqtº Avelino Oliveira
EQUIPA:
Ricardo Soares
especialidades: engº Lopes Oliveira









